Description
Noorderkerkstraat 7 HS – Amsterdam
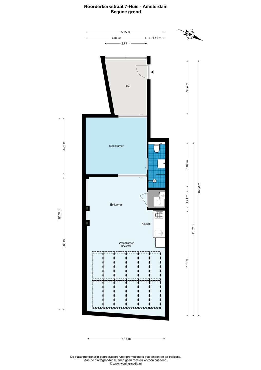
Located in an exceptionally beautiful location, right in the heart of the Jordaan, is this characterful and stylishly renovated apartment of approx. 75 m² (NEN measured), situated on the ground floor. The property is characterized by a distinct industrial loft look, combined with a high-quality finish, abundant natural light, and a spacious feel thanks to the impressively high ceilings.
The apartment was thoroughly renovated and modernized in 2020, with a careful selection of timeless and stylish finishes. The beautiful floors ensure a high level of living comfort and enhance the warm, contemporary appearance of the home.
The division of this property will be completed within a few weeks. As a buyer, this gives you the assurance of a sound foundation and a low-maintenance condition of the building.
The living room forms the heart of the apartment and is characterized by particularly pleasant natural light thanks to a beautiful large skylight. In combination with the ceiling height and the loft-like layout, a light and spacious living environment is created here with an elegant, almost studio-like character.
Layout
Entrance on the ground floor. The various rooms are accessible from the hall. The bedroom is located at the front, quietly situated and well-proportioned. The bathroom, equipped with a shower and toilet, is located on the left. Further on, the home opens up to the spacious and bright living room, where industrial elements, design character, and high-quality finishes come together in a comfortable and stylish living space.
The property was divided very recently in 2026. The Owners' Association is being established. The monthly service charges have been set at (p.m.). Consequently, the property and the apartment are in excellent condition.
Location:
The location can be described as exceptional without exaggeration. Noorderkerkstraat is situated in one of the most beloved parts of the Jordaan, a neighborhood known for its authentic atmosphere, charming streets, and lively character. Various cafes, restaurants, galleries, and specialty shops are located in the immediate vicinity. The Noordermarkt, the canals, and the historic center of Amsterdam are also within short walking distance.
Features
• Noorderkerkstraat 7 HS, Amsterdam
• Approx. 75 m² living area (NEN measured)
• Ground floor
• 1 bedroom
• Thoroughly renovated and modernized in 2020
• Subdivision scheduled for 2026
• Industrial loft look
• Very high ceilings
• Large skylight providing beautiful natural light in the living room
• Beautiful floors with underfloor heating
• Located in a prime location in the heart of the Jordaan
• Beautiful high doors at the front that can be opened wide
• Own ground ( no leasehold)
• Energylabel B
A stylish and characterful apartment with a loft-like appearance, situated in one of Amsterdam's most sought-after locations.
The subdivision of this apartment is currently being finalized by Van Rooij Wassink Notarissen in Amsterdam. The sale is taking place upon the final completion of this subdivision. The final monthly HOA contribution has not yet been determined, but will most likely amount to between 150 and 200 euros per month.