Beschrijving
Een geweldig gelegen en recent volledig gerenoveerd familiehuis.
Dit huis heeft door zijn hoekligging lekker veel licht, en is met haar stijlvolle uitstraling, fijne leefruimtes en slim doordachte indeling helemaal klaar voor de nieuwe bewoners.
De huidige eigenaren hebben het pand recent met veel passie en toewijding volledig herontwikkeld tot de huidige indeling. Hierbij hebben ze als uitgangspunt genomen dat alle ruimtes als eenheid mooi op elkaar afgestemd moeten worden. En dat is gelukt. Het resultaat is dit schitterende en verrassend ruime familiehuis.
Het huis heeft een unieke ligging in het geliefde Santpoort-Zuid, midden in het hart van het dorp, en grenzend aan Bloemendaal en Haarlem. Dit huis biedt een ideale combinatie van de nabije stedelijke voorzieningen met de rust en gemoedelijkheid van het dorp en de prachtige groene omgeving van het Kennemerland.
De woning is volledig gerenoveerd, gemoderniseerd én geïsoleerd. Dit huis is volledig instapklaar, en de nieuwe bewoners kunnen het huis op zeer korte termijn al betrekken indien gewenst.
OMGEVING
Dit fijne familiehuis ligt in een rustige straat in het hart van het dorp Santpoort Zuid, een gemoedelijk dorp grenzend aan onder andere Bloemendaal en Haarlem. Deze rustige wijk biedt een unieke mix: je woont in alle rust, maar met stad, strand en natuur altijd dichtbij. Sportvelden, sportschool, winkels en scholen liggen om de hoek. Binnen enkele minuten wandel je naar de Kennemerduinen en met circa 15 minuten fietsen sta je op het strand van Bloemendaal. De historische binnenstad van Haarlem ligt op slechts 15 minuten fietsen.
Het NS station van Santpoort-Zuid ligt op loopafstand, waardoor de verbinding naar onder andere Amsterdam en Schiphol ideaal is. Met de trein reist u in circa 20 minuten naar Amsterdam.
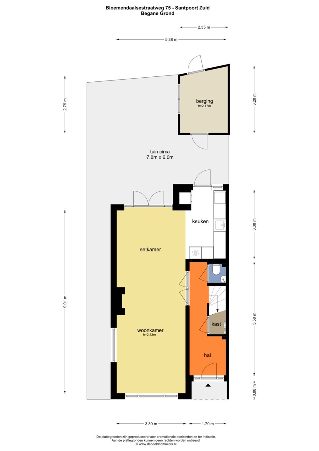
INDELING
Bij binnenkomst valt al gelijk het mooie originele glas in lood op dat boven de voordeur is geplaatst. Een leuk kenmerk dat verraadt dat dit een typische jaren-30 woning is. In de hal bevindt zich een kleine opslag en een gemoderniseerd toilet. Een fraaie stalen deur leidt naar de woonkamer. De lichte en verrassend ruime woonkamer straalt warmte uit en biedt uitzicht op de rustige voorgelegen straat en de achtergelegen tuin. De vloer is gelegd in een fraai visgraatmotief en is voorzien van vloerverwarming. De woonkamer is voorzien van een recent geplaatste fraaie gashaard.
Aan de achterzijde vind je de gemoderniseerde en doorgebroken keuken. Deze stijlvolle keuken is voorzien van inbouwapparatuur en de stijl sluit naadloos aan bij de rest van het huis. Aan de achterzijde is er vanuit de woonkamer en keuken toegang tot de gezellige achtertuin waar je tot laat in de avond lekker kan zitten. De hoge glazen pui zorgt voor een naadloze overgang van de woonkamer naar deze tuin.
Ook boven biedt het huis volop wooncomfort. Op de eerste verdieping vind je de hoofdslaapkamer aan de achterzijde, met fijne inbouwkasten. Er is een ruime tweede slaapkamer aan de voorzijde en een derde slaapkamer die nu dienstdoet als kastenkamer en werkkamer. De stijlvolle badkamer op deze verdieping is voorzien van een fijn bad, douche en wastafel en op de hal is er een apart toilet.
Deze badkamer is tijdens de verbouwing behoorlijk toegenomen in oppervlak. Het toenmalige balkon is zeer vakkundig uitgebouwd waardoor er nu een veel ruimere badkamermogelijkheid is gecreëerd.
De tweede verdieping biedt momenteel een zeer ruime slaapkamer met fraaie balkenstructuur in het zicht. Deze slaapkamer is reeds voorbereid om -indien nodig- opgedeeld te worden in twee kinderkamers. Aan de voor- en zijkant van het pand zijn er nieuwe dakkapellen geplaatst, waardoor het gebruiksoppervlak ook nog is toegenomen. Naast deze slaapkamer bevindt zich aan de voorzijde de wasruimte.
Ook is er op deze verdieping begonnen met de bouw van een tweede badkamer. Dit zal door kopers verder afgewerkt dienen te worden. Deze badkamer biedt ruimte aan een toilet, douche en wastafel.
BUITENRUIMTES:
De zonnige tuin op het zuidwesten wordt echt als een verlengde van de woonkamer gebruikt. Een gigantische perzikboom verraadt dat de zonligging ideaal is! Er zijn leuke zit- en speelplekken, en de tuin straalt rust uit . Overdag geniet je van de zon of een schaduwrijke hoek, maar ook ’s avonds biedt het een sfeervolle plek om lekker buiten te zitten. Er is een houten schuur voor fietsen en tuinspullen, met toegang via een achterom.
KENMERKEN IN EEN OOGOPSLAG:
- Volledig gerenoveerde en sterk verduurzaamde woning
- Volledig nieuwe ramen (2025)
- Uitstekende isolatie, stil en comfortabel wonen (energielabel B- 2025)
- Fraaie keuken
- Woonkamer met vloerverwarming en open (gas)haard
- 4 slaapkamers, mogelijkheid tot het creëren van een vijfde slaapkamer
- Fraaie gemoderniseerde badkamer, met een voorbereiding voor een tweede badkamer
- Gezellige en zonnige tuin op het zuidwesten met schuur en achterom
- Gelegen midden in een gewilde en rustige wijk
- Nieuw geplaatste dakkapellen voor en achter
- Turn-key oplevering
De Bloemdaalsestraatweg 75 biedt alles wat je zoekt in een familiehuis: licht, ruimte, comfort en een unieke ligging waar stadse levendigheid en de gemoedelijkheid van een dorpse omgeving samenkomen.
Plan snel een bezichtiging en ervaar zelf de sfeer van dit instapklare huis.
DISCLAIMER
Deze informatie is door ons met de nodige zorgvuldigheid samengesteld. Onzerzijds wordt echter geen enkele aansprakelijkheid aanvaard voor enige onvolledigheid, onjuistheid of anderszins, dan wel de gevolgen daarvan. Alle opgegeven maten en oppervlakten zijn indicatief.