Beschrijving
Goed gelegen 2 slaapkamer appartement van ca 60m2 met 2 buitenruimten gelegen in de Hoofddorppleinbuurt van Amsterdam Zuid.
Het appartement is recent goed vernieuwd (nieuwe vloer, schilderwerk, keuken, vernieuwd dubbelglas voorgevel) is gelegen op de 2e verdieping, heeft 2 goed bemeten slaapkamers en een heerlijk zonnig balkon en dakterras. De keuken is zeer ruim en daardoor een hele leuke woonkeuken, perfect voor entertainen.
De 2e slaapkamer is op de 3e verdieping gelegen, het is een externe kamer die te bereiken is via het algemene trappenhuis. Deze kamer is 11 m2(!) groot en het betreft een verwarmd vertrek. Omdat het een externe kamer betreft is deze niet meegenomen in het totale woonoppervlak. Het totale bruto woonoppervlak van het hele appartement is meer dan 70m2!
Kortom, een extra kamer die perfect geschikt is als kantoorfunctie.
OMGEVING:
Gelegen in de bruisende Hoofddorppleinbuurt tussen de Aalsmeerweg en de Rijnsburgstraat. Om de hoek vindt u de Zeilstraat, Amstelveenseweg en het Hoofddorpplein waar zich mooie boetiekjes, speciaalzaken en traiteurs bevinden en tevens fijne lunchgelegenheden en restaurants. Het Vondelpark is vlakbij gelegen. Er is een zeer goede bereikbaarheid met het openbaar vervoer (tram op loopafstand) en parkeren kan in de straat middels het vergunningstelsel. Via diverse uitvalswegen bent u zo op de ring-A10.
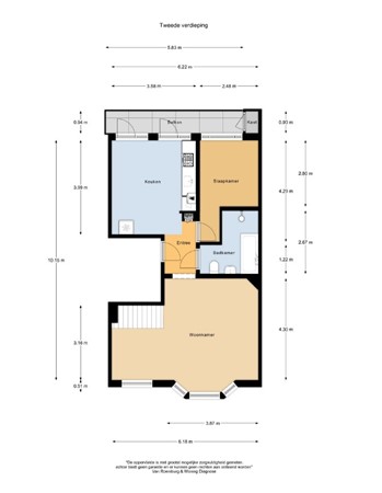
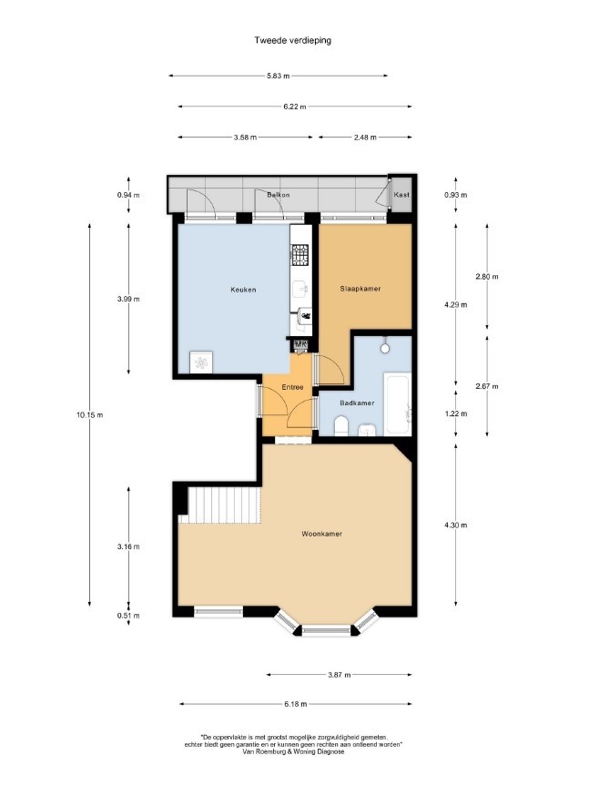
INDELING:
Entree via de tweede etage, hal die toegang geeft tot alle vertrekken zoals de ruime woonkamer met erker, slaapkamer voorzien van vaste kasten, de badkamer die voorzien is van ligbad inloopdouche toilet en wastafelmeubel, de ruime keuken is uiteraard voorzien van de gewenste apparatuur. Via het algemene trappenhuis toegang tot de 2e slaapkamer/kantoor en het dakterras.
KENMERKEN:
- Gemeubileerd appartement van ca. 60m²
- Dakterras & balkon
- Goed geïsoleerd, volledig dubbelglas
- 2 slaapkamers
- Servicekosten € 100 per maand
Neem contact met ons op voor een bezichtiging of kijk op onze website voor ons actuele aanbod! Wij regelen graag een bezichtiging met u voor dit leuke appartement. Laat ons weten welk moment het beste uitkomt en wij zullen ons uiterste best doen om dit zo in te plannen.
DISCLAIMER
Deze informatie is door ons met de nodige zorgvuldigheid samengesteld. Onzerzijds wordt echter geen enkele aansprakelijkheid aanvaard voor enige onvolledigheid, onjuistheid of anderszins, dan wel de gevolgen daarvan. Alle opgegeven maten en oppervlakten zijn indicatief.