Beschrijving
Geweldig 3 slaapkamer appartement met 2 badkamers, een lift en een ruim terras gelegen in het centrum met een fantastisch zicht op de stad en het Rijksmuseum
Dit appartement is gelegen in en statig gebouw aan de Weteringschans, nabij het Rijksmuseum en het Spiegelkwartier. Aan de voorzijde is er uitzicht over het museum en de prachtige panden aan de waterzijde, en aan de achterzijde is er uitzicht over het water van de Lijnbaansgracht. Zeer uniek! Het appartement ligt temidden van de vele restaurants, theaters, terrassen en uitgaansgelegenheden. Het is slechts enkele minuten lopen naar de entree van het Vondelpark.
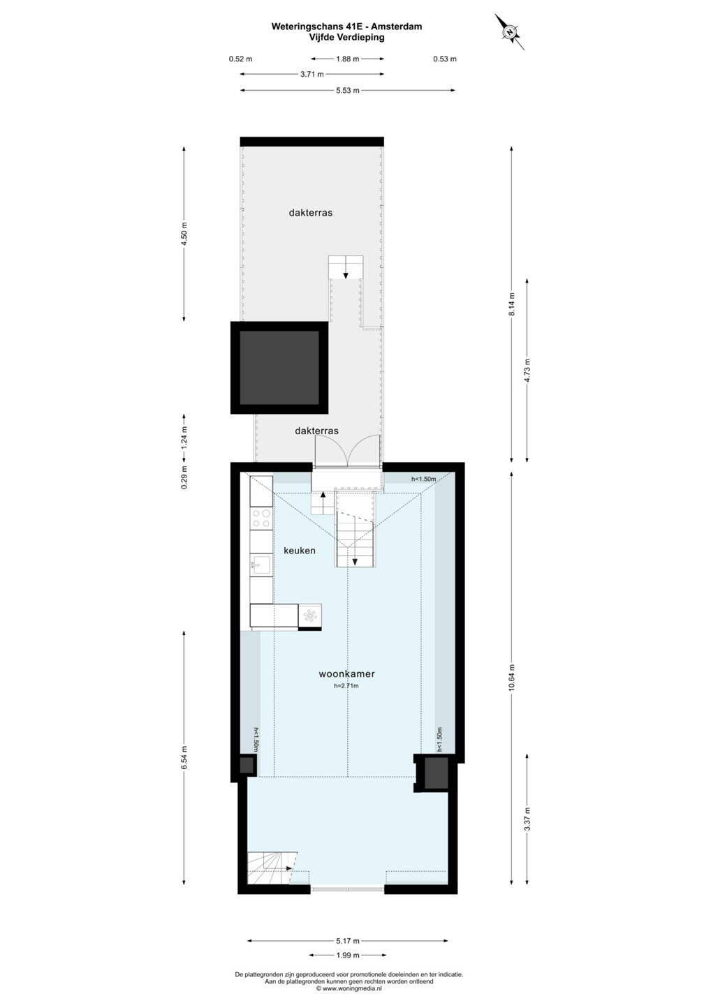
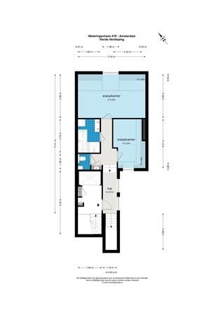
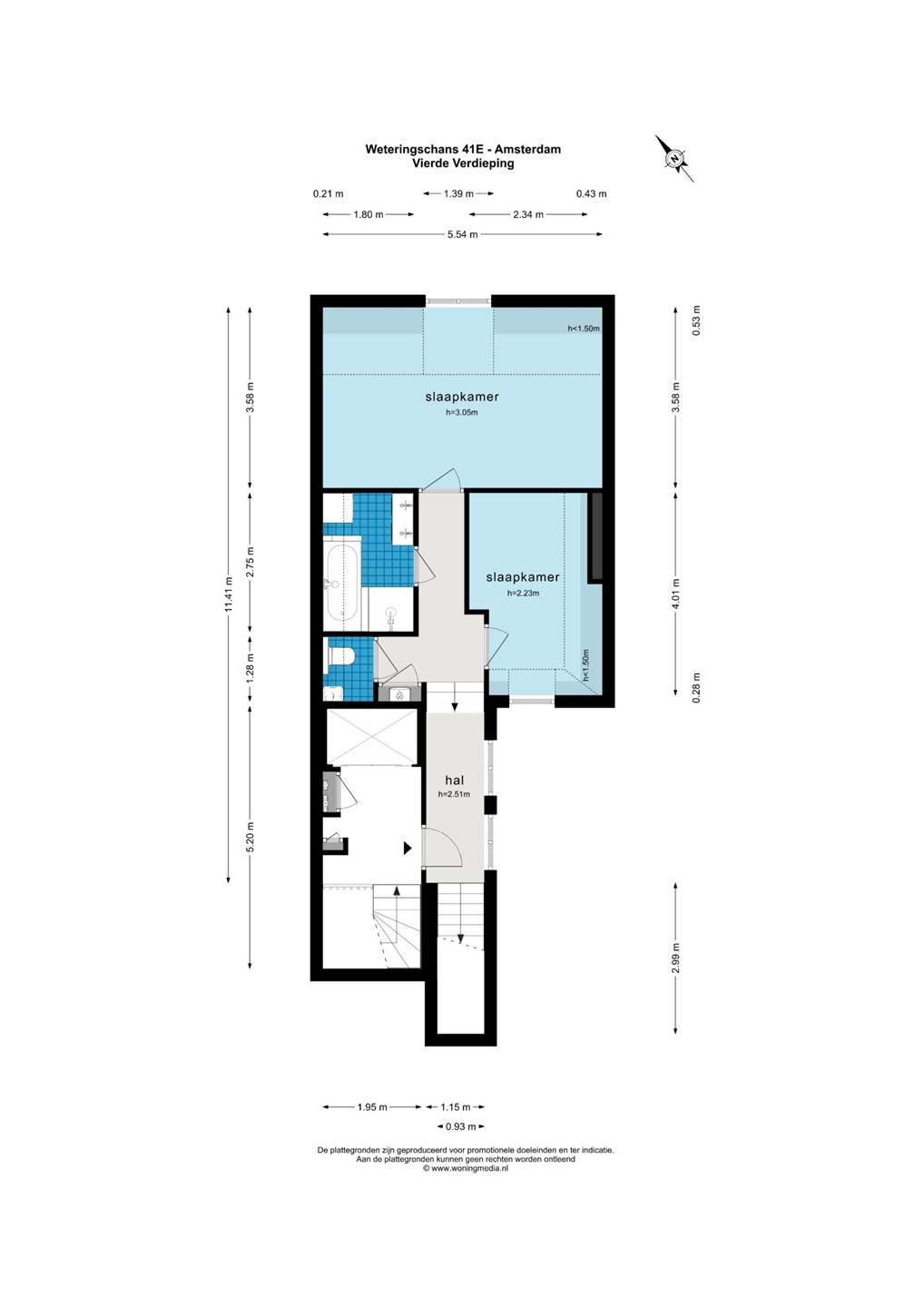
INDELING:
Moderne hal met lift naar de vierde etage. Entree, zeer ruime woonkamer met hoge plafonds. Fraai uitzicht over de voorzijde met zicht op het Rijkksmuseum. De woonkamer heeft een bruikbare open haard. De woonkamer is enorm licht door haar ligging op het Zuid Westen. De moderne keuken is in nieuwstaat en is voorzien van goede inbouwapparatuur. Via de keuken is er toegang tot het achterliggende privé dakterras. Vanuit hier is er uitzicht over de gehele binnenstad.
Aan de achterzijde bevinden zich een zeer ruime ouderslaapkamer, een kleinere kinderkamer / werkkamer, een badkamer met bad en douche en een toilet. Boven de woonkamer is er een derde slaapkamer met wederom een badkamer met douche en toilet.
KENMERKEN:
- Gestoffeerd appartement
- Gemoderniseerd appartement
- Lift aanwezig in het complex
- Veel daglicht toetreding
- 3 slaapkamers
- 2 badkamers
- Unieke locatie in het centrum
- Huurcontract voor onbepaalde tijd
- Huurprijs is exclusief kosten voor nutsvoorzieningen
- Beschikbaar per direct
Op loopafstand heeft de verhuurder eventueel een parkeerplaats beschikbaar tegen meerprijs.
LET OP: DIT HUIS IS NIET GESCHIKT ALS DEELWONING
DISCLAIMER
Deze informatie is door ons met de nodige zorgvuldigheid samengesteld. Onzerzijds wordt echter geen enkele aansprakelijkheid aanvaard voor enige onvolledigheid, onjuistheid of anderszins, dan wel de gevolgen daarvan. Alle opgegeven maten en oppervlakten zijn indicatief.