Beschrijving
INTRODUCTIE:
Wonen in pure luxe met veel ruimte, omringd door groen, met veel voorzieningen nabij, maar toch binnenin de mooie stad Amsterdam. Dat kan hier allemaal in het net opgeleverde wooncomplex Cornelis.
Een prachtig wooncomplex dat is voortgekomen uit de wens om ruimte, groen en duurzaamheid te combineren met wonen in de grote stad. Gezinnen hoeven de stad niet meer uit te trekken voor meer ruimte en comfort. Grootstedelijke beleving sluit bij het complex Cornelis naadloos aan op duurzaamheid en groen, met een geweldige woonbeleving als resultaat.
Het gebouw dingt mee voor de architectuurprijs van het beste woningbouwproject van Amsterdam 2025!
DE OMGEVING:
Het complex is gelegen in de hippe Schipluidenbuurt, direct op de grens tussen Amsterdam Zuid en Nieuw West. Het is een plek met veel gezellige bars en restaurants in de buurt. Ook het trein- en metrostation Lelylaan, het Rembrandtpark en het Vondelpark liggen op loopafstand. Recent zijn er aan de overkant twee supermarkten en een sportschool geopend.
HET PAND:
Er is bij de ontwikkeling van dit pand is bewust gekeken naar de wensen van de toekomstige bewoners. Deze woningen hebben allemaal een zeer hoog afwerkingsniveau en bieden allemaal lekker veel leefruimte. Daarnaast is het het groene woonaspect overal terug te vinden, zowel via de materiaalkeuzes als bij de gemeenschappelijke buitenruimtes.
Alle verdiepingen zijn per lift bereikbaar, maar het pand is dusdanig ingericht dat er ook echt interactie is tussen de bewoners onderling. Er is zelfs een gemeenschappelijke huiskamer beschikbaar voor de bewoners! Onder het gebouw bevinden zich de ruime fietsenberging en de garageplekken.
Er zijn enkele verschillende type woningen beschikbaar in het pand. Dit appartement heeft een buitengewoon gewilde indeling en de afwerking is van een zeer hoog niveau. Je voelt je er dan ook direct in thuis!
HET APPARTEMENT:
Dit appartement is gelegen op de 7e verdieping en is bereikbaar per lift en per trap. Het energielabel van dit appartement is A+++. Het uitzicht naar buiten is spectaculair. Het is een zeer licht appartement met vooral veel ruimte. De afwerking is tot in detail uitgewerkt en heeft geleid tot dit schitterende appartement.
BINNENIN:
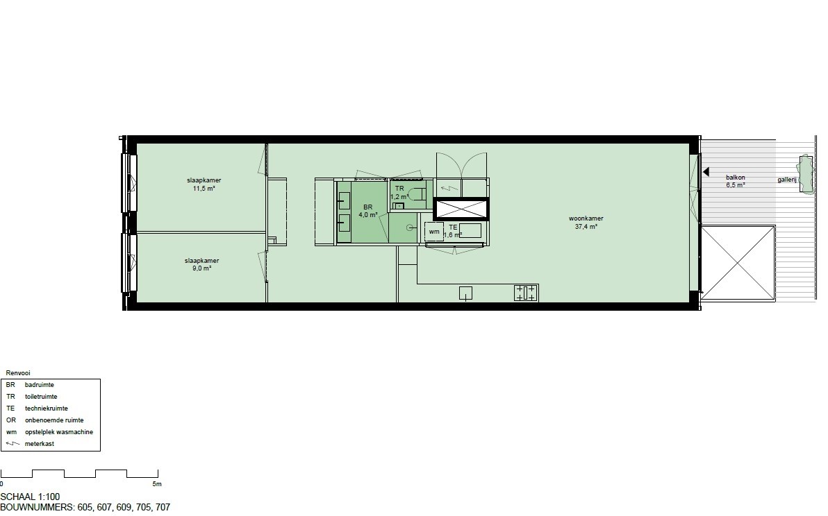
Bij binnenkomst via de mooi ontworpen houten galerij springt de ruimtelijke en lichte indeling van dit appartement direct in het oog. De woonkamer is gelegen aan de galerijzijde, is georiënteerd op het zuiden en heeft aangrenzend een fijn zonnig terras van ca. 6 m2. De strakke moderne half open keuken is van het Deense design merk KVIK, en is uiteraard voorzien van luxe inbouwapparatuur. Aan de achterzijde bevinden zich twee ruime slaapkamers. Daarnaast is er ook een mogelijkheid om bij dit appartement nog een extra werk- of studeerplek te creëren tussen de twee slaapkamers in.
Het appartement beschikt over een erg mooie badkamer met luxe inloopdouche en een dubbele wastafel. Op de hal ligt een apart toilet. Door het gehele appartement ligt een fraaie visgraat vloer een met rustieke hout uitstraling. Alle vloeren binnen het appartement zijn voorzien van vloerverwarming.
De geur van vers geverfde muren, een hoekje met wat restjes bouwstof en een laatste plintje dat vastgezet wordt verraadt het de oplettende kijker: dit is een nagelnieuw en zojuist opgeleverd appartement. Dat nu klaar wordt gemaakt voor de nieuwe bewoners!
ENKELE KENMERKEN:
- Huurprijs: € 2.650,- p.m. excl. warmte, elektra, water, kabel en internet
- Servicekosten: € 100,- p.m., onder andere voor gebruik en schoonmaak gemeenschappelijke ruimten, lift en glasbewassing
- Waarborgsom: 2 maanden huur
- Energielabel A+++
- Oppervlakte ca. 89 m2 (gemeten conform NEN2580)
- Beschikbaar per direct
- Huurcontract voor onbepaalde tijd, model A. De minimale huurperiode voor het appartement bedraagt 1 jaar
- Jaarlijkse huurprijsindexatie conform de wettelijke CPI.
- 2 Slaapkamers en een fijne werkkamer
- Warme en luxueuze afwerking
- Gestoffeerde verhuur
- Leuk en zonnig privéterras op het zuiden
- Een parkeerplek in de ondergelegen parkeergarage is in overleg en tegen meerprijs te huren
- Volledig nieuwe oplevering in een toonaangevend wooncomplex.