Description

Runstraat 6-2, Amsterdam – Spacious Double Upper Apartment with two separate apartments in it, in the Heart of the Nine Streets

In one of Amsterdam’s most charming and sought-after areas, right in the middle of the Nine Streets, you’ll find this beautiful double upper apartment at Runstraat 6-2. Spread over the second and third floors, this home offers a unique layout with two bedrooms, two bathrooms, and two kitchens – ideal for sharers or a couple looking for flexible and spacious living.

Layout

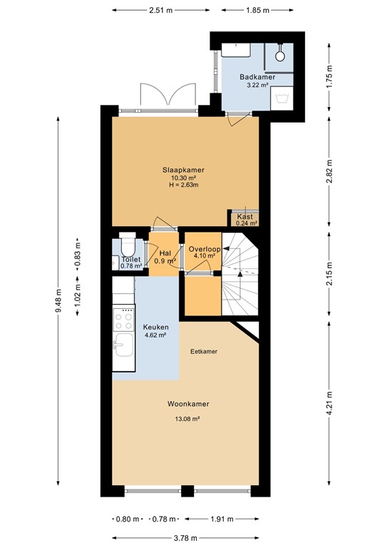
Second floor:
The entrance is reached via the shared staircase. On this level you’ll find a bright living room with large windows and an open kitchen equipped with modern built-in appliances. At the rear is a bedroom with an en-suite bathroom (with shower and washbasin). There is also a separate toilet in the hallway.

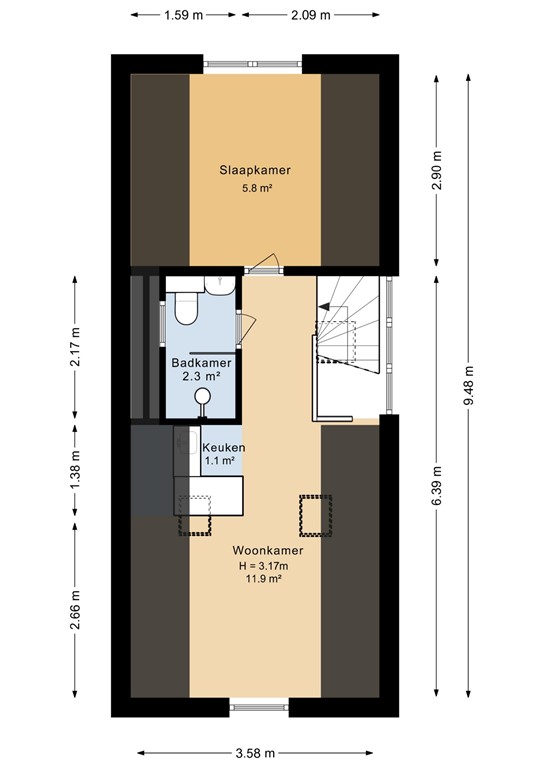
Third floor:
A staircase in the hallway leads to the top floor, featuring another comfortable living room with a small open kitchen, a bathroom with shower and toilet, and a bedroom at the rear. Thanks to this smart layout, both floors can function as semi-independent living spaces – perfect for two people sharing who value privacy and comfort.

Features

Double upper apartment spread over two floors

2 bedrooms

2 bathrooms with showers

2 toilets

2 kitchens (one with built-in appliances)

Located in the popular Nine Streets, part of Amsterdam’s historic canal district

CONDITIONS:

Ideal for house sharers. Unfortunately, the apartment is not suitable for parties wishing to rent with guarantors.

No students

Maximum 2 occupants!

Available immediately

Rent: €3,350 per month, excluding utility charges

Location

The Runstraat is part of the famous Nine Streets, a picturesque area filled with boutique shops, cosy cafés, and top-quality restaurants. The canals, Leidseplein, and Dam Square are all within walking distance. Public transport connections and amenities are excellent, making this one of the most desirable places to live in Amsterdam.

Available immediately – a rare opportunity to live in the very heart of Amsterdam, with the space and flexibility of two self-contained floors. Rent €3,350 per month, excluding utilities.

Features