Beschrijving

Het Singel – feitelijk het oudste onderdeel van de iconische en wereldberoemde Amsterdamse grachtengordel. Aan deze prachtige, zonovergoten gracht bevindt zich dit uitstekend onderhouden Rijksmonument. Het pand, daterend uit circa 1750, heeft door de jaren heen zijn karakter op elegante wijze behouden en kan met recht als ‘stijlvol gerijpt’ worden omschreven.

Recent is de splitsing van het pand afgerond en is de VvE opgericht. Er is een uitgebreid MJOP beschikbaar. Het gebouw omvat in totaal vier appartementen en is altijd met grote zorg onderhouden. Dit appartement beschikt bovendien over een recent energielabel A.

Rond 2012 is het pand volledig heringedeeld en grondig gerenoveerd. Daarbij is met uitzonderlijke precisie gewerkt, wat heeft geresulteerd in een harmonieuze balans tussen hedendaags comfort en de monumentale uitstraling.

De verkoop betreft het dubbelvloerse appartement, gelegen op de bel-etage van het gebouw.

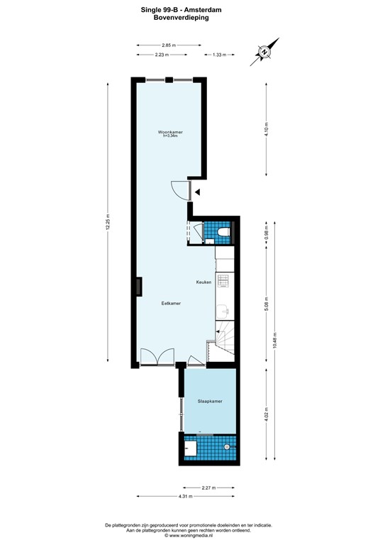
INDELING
Representatieve hal met stijlvolle entree. De voordeur bevindt zich op de bel-etage, waar direct de prachtige visgraat parketvloer in het oog springt. Aan de voorzijde ligt de sfeervolle zitkamer met een fraai uitzicht over de gracht. De hoge plafonds zorgen voor een aangename lichtinval en versterken het ruimtelijke gevoel.

Naast de entree bevindt zich een separaat toilet. Aan de achterzijde ligt de luxe keuken, voorzien van hoogwaardige inbouwapparatuur. Hier bevindt zich tevens de eerste slaapkamer, uitgerust met een eigen badkamer met douche en wastafelmeubel.

Via de trap bereikt u de ondergelegen verdieping, die volledig is voorzien van vloerverwarming. Hier bevindt zich allereerst de ruime hoofdslaapkamer, met directe toegang tot het charmante patio-terras. De derde slaapkamer leent zich tevens uitstekend als werkkamer. Op de overloop is een royale wasruimte aanwezig met plaats voor wasmachine en droger, evenals extra bergruimte.

De tweede badkamer is luxueus afgewerkt met hoogwaardige materialen en beschikt over een douche, ligbad, toilet en wastafelmeubel.

KENMERKEN
• Woonoppervlakte circa 82 m² (NEN2580 meetrapport beschikbaar)
• Zeer goed onderhouden en hoogwaardig afgewerkt appartement
• Drie slaapkamers en twee badkamers
• Recent opgerichte VvE met professionele beheerder
• Energielabel A
• Servicekosten € 275,45 per maand
• Gelegen op eigen grond (geen erfpacht)
• Ideale ligging nabij het station, midden in de binnenstad van Amsterdam
• Funderingsrapport uit 2024, waaruit blijkt dat de fundering in goede staat verkeert
• Verkoop met niet-zelfbewoningsclausule
• Per direct beschikbaar

De verkoop geschiedt onder voorbehoud van gunning door de eigenaar.

DISCLAIMER
Deze informatie is met de grootst mogelijke zorgvuldigheid samengesteld. Desondanks aanvaarden wij geen aansprakelijkheid voor eventuele onvolledigheden, onjuistheden of de gevolgen daarvan. Alle vermelde maten en oppervlakten zijn indicatief.

Kenmerken