Beschrijving

Runstraat 6-2, Amsterdam – Dubbel bovenhuis met daarin twee zelfstandige woningen in het hart van de Negen Straatjes, het appartement is perfect voor woningdelers. 

In één van de meest geliefde straten van Amsterdam, midden in de sfeervolle Negen Straatjes, ligt dit charmante dubbel bovenhuis aan de Runstraat 6-2. Verdeeld over de tweede en derde verdieping biedt deze woning een unieke indeling met twee slaapkamers, twee badkamers en twee keukens – ideaal voor woningdelers of een bedrijf dat voor personeel een woning zoekt.

Indeling: 

Tweede verdieping:
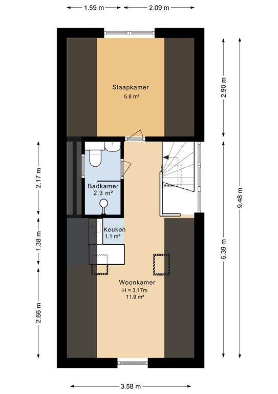
Via het  trappenhuis bereik je de entree van het appartement. Op deze verdieping bevindt zich een lichte woonkamer met grote ramen en een open keuken voorzien van moderne inbouwapparatuur. Aan de achterzijde ligt een slaapkamer met aangrenzende badkamer (met douche en wastafel). Daarnaast is er een apart toilet in de hal.

Derde verdieping:
Via de trap in de hal bereik je de bovenste verdieping. Hier vind je opnieuw een gezellige woonkamer met een open keukentje, een badkamer met douche en toilet, en een slaapkamer aan de achterzijde. Dankzij deze slimme indeling kunnen beide verdiepingen als zelfstandige woonruimtes functioneren – perfect voor twee bewoners die samen willen wonen maar toch hun eigen plek willen behouden.

Bijzonderheden:
- Dubbel bovenhuis verdeeld over twee verdiepingen
- 2 slaapkamers
- 2 badkamers met douche
- 2 toiletten
- 2 keukens (waarvan één met inbouwapparatuur)

Ideaal voor woningdelers

Gelegen in de populaire Negen Straatjes, midden in de Amsterdamse grachtengordel

CONDITIES:
- Ideaal voor woningdelers. Helaas is het appartement niet geschikt voor partijen die met garantstellers willen huren. 
- Geen studenten
- Maximaal 2 bewoners!
- Per direct beschikbaar

Huurprijs: € 3.000 per maand, exclusief gebruikslasten

Omgeving:
De Runstraat maakt deel uit van de beroemde Negen Straatjes – een charmant stukje Amsterdam vol unieke winkels, gezellige cafés en uitstekende restaurants. Alles wat de stad te bieden heeft ligt op loopafstand: de grachten, het Leidseplein, de Dam en tal van culturele hotspots.

Kenmerken